3138 Cross Keys Rd
Rockingham, VA
Listed 10 Days Ago
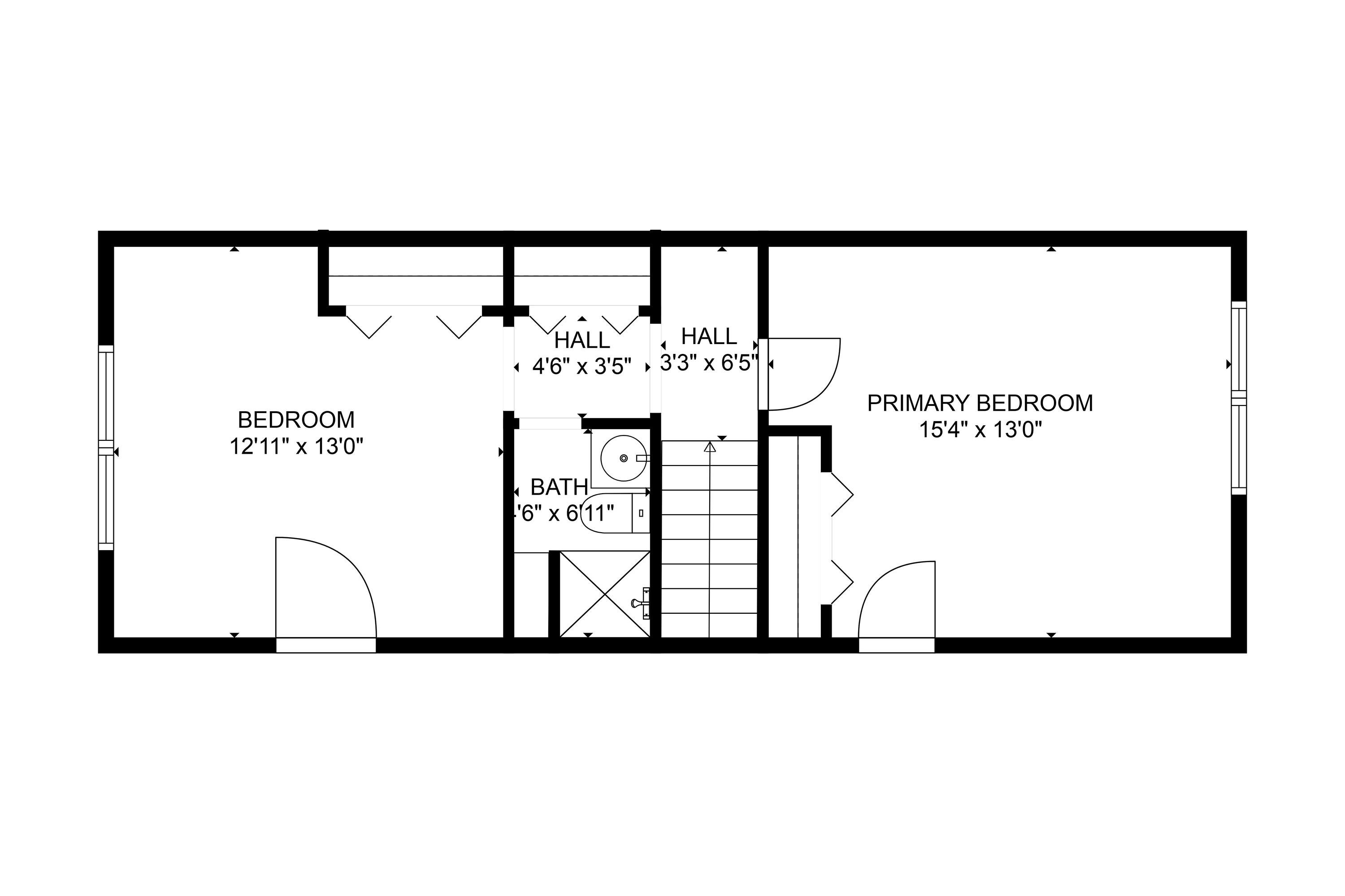
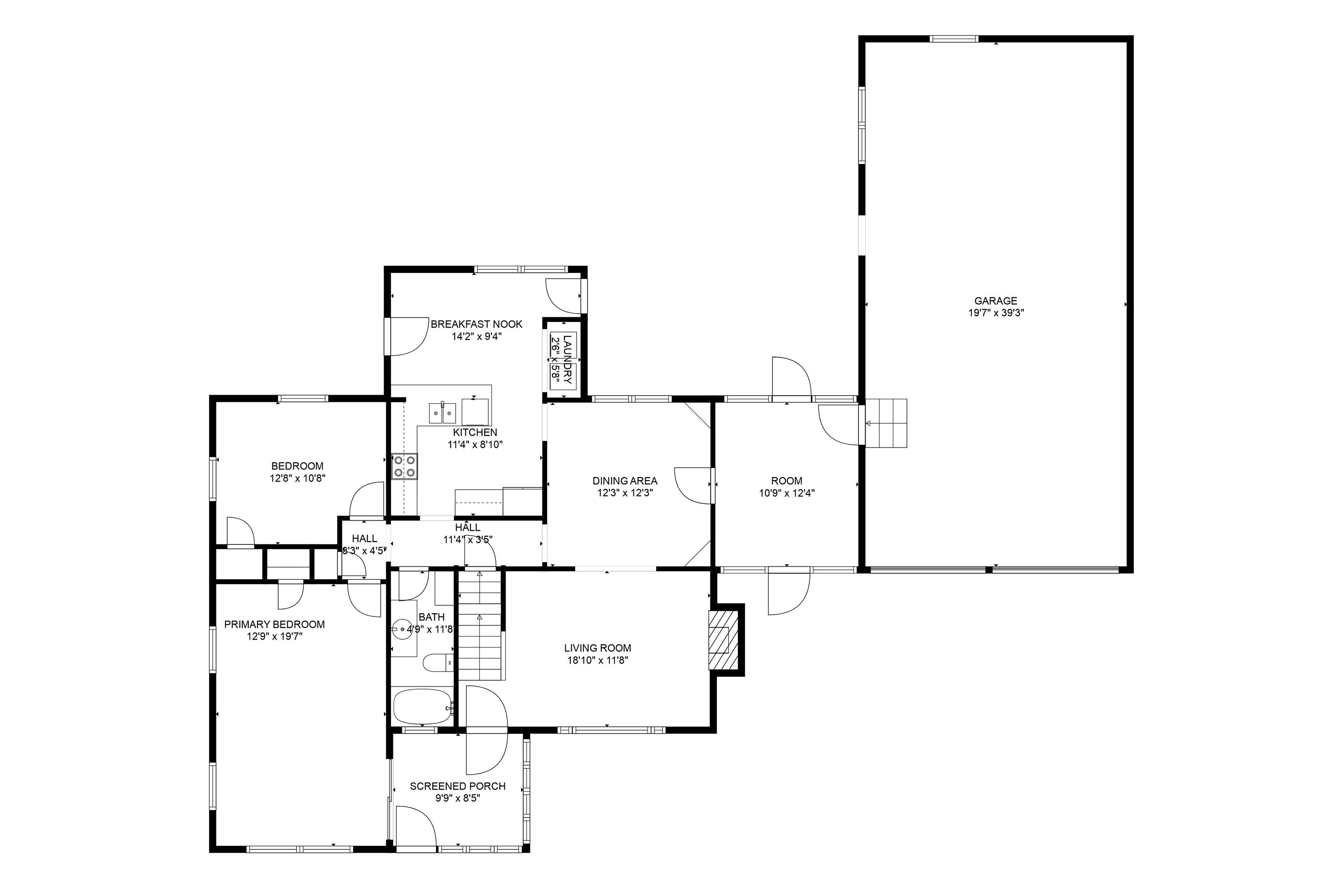
4 BR  •  2 BA  •  1,908 SF
circa 1952  •  0.74 acre
$335,000  •  Under Contract  •  4 DOM
Listed by Funkhouser Real Estate Group
Enjoy peaceful living and panoramic mountain views from this updated four-bedroom, two-bath home on three quarters of an acre on Cross Keys Road. Inside, the beautifully renovated kitchen stands out with white cabinetry, granite countertops, and stainless steel appliances and connects to a bright breakfast nook. The main level also features a large living room with lots of natural light and beautiful mountain views, plus a dining area, two bedrooms and a full bathroom. The upper level features two additional bedrooms and a shared full bathroom, while the unfinished basement offers plenty of room for storage. You can soak in those mountain views from plenty of areas in this spacious home including the main level primary bedroom, the living room, and the front screened porch. The side enclosed porch leads to a large (19'x39') attached garage that is great for vehicles, a workshop, hobbies and more. The home's character shines through thoughtful details, balanced by practical updates and spacious living. Out back, a covered shed/barn area adds even more flexibility for projects or equipment. Located in a quiet rural setting yet still convenient to Harrisonburg amenities in a beautiful Shenandoah Valley location.
Peak View Elementary  •  Montevideo Middle  •  Spotswood High