Scott P. Rogers, Funkhouser Real Estate Group
540-578-0102, scott@FunkhouserGroup.com
Scott P. Rogers    Funkhouser Real Estate Group    540-578-0102
A service of Scott P. Rogers, Associate Broker, Funkhouser Real Estate Group, 540-578-0102, scott@HarrisonburgHousingToday.com
 
97 Laurel Oak Ln
Grace Lee Estates Subdivision
Grottoes, VA
Listed 34 Days Ago
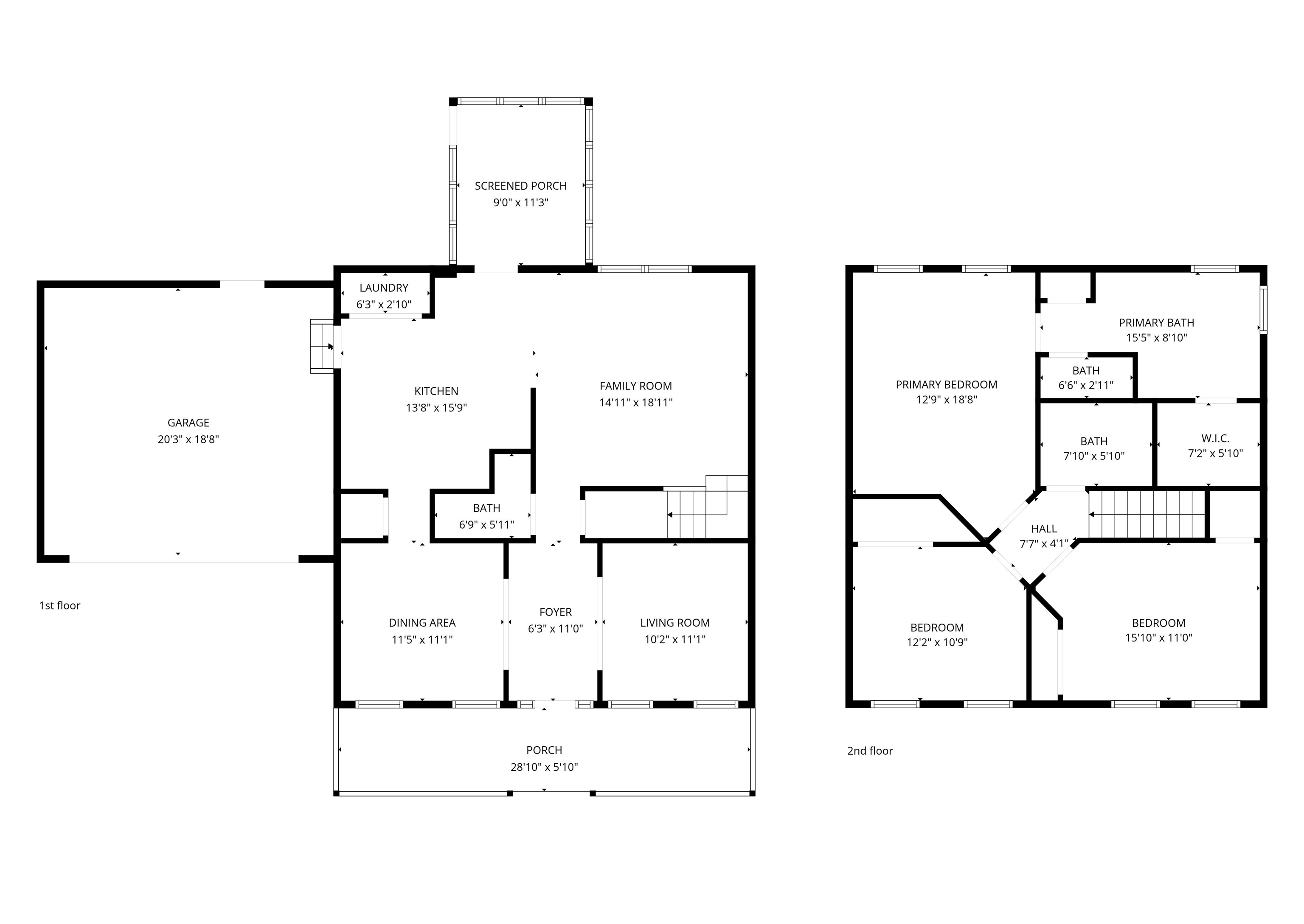
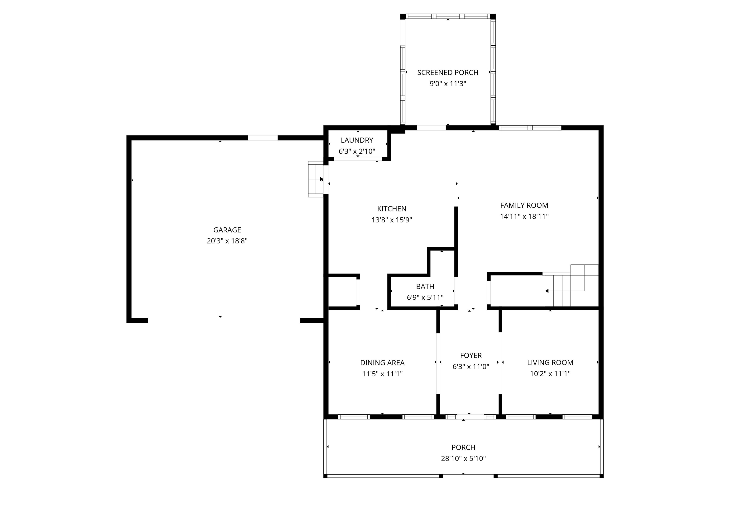
3 BR  •  2.5 BA  •  1,920 SF
circa 1999  •  0.35 acre
$395,000  •  For Sale  •  33 DOM
Listed by NEST REALTY GROUP STAUNTON
Welcome to this well-maintained two-story home, perfectly nestled on a desirable corner lot. Step inside to discover an inviting open floor plan, highlighted by fresh paint and stylish new light fixtures throughout. The home boasts spacious bedrooms with generous closet space, offering comfort and functionality for everyone. Recent updates include attic insulation, vinyl siding, all completed in 2023 for added energy efficiency and peace of mind. Enjoy relaxing or entertaining in the screened-in porch, providing the perfect spot to unwind while overlooking the beautifully landscaped surroundings. This home is move-in ready and a must-see!
South River Elementary  •  Elkton Middle  •  East Rockingham High
Share via Email
Share via Facebook
Ask a Question
 
 
 
 
Full Property Search
Sign Up For Email Alerts